住所:仙台市青葉区二日町 交通:地下鉄南北線「北四番丁駅」徒歩5分 賃貸オフィス 貸事務所
T1303-4 【イマス二日町ビル】駅近×1階区画!二日町の重厚オフィス

\北四番丁駅 徒歩5分の立地/
二日町エリアの落ち着いた街並みに
静かにそびえる重厚なオフィスビル
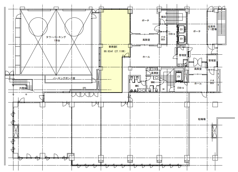
ご紹介するのは、その1階路面区画
視認性・アクセス性ともに良好で
来客対応の多い業種にもぴったりの物件です
◆重厚なファサードと安心の共用部
外壁は重厚な御影石調
エントランスも高級感漂うタイルと照明で演出され
訪れる人に信頼と安心を与える印象です
さらに、共用部には清潔に保たれた
男女別トイレやキッチンも完備
毎日使う空間だからこそ
細部の清潔感が働く人の満足度を高めます
◆駐車場完備・ハイルーフ車もOK!
ビル内には立体駐車場を完備しており
ハイルーフ車にも対応
24時間利用可能で
外回りが多い業種にも大変便利です
◆こんな方におすすめです
税理士や社労士などの士業
来客の多い営業拠点、または地域密着型のオフィスにおすすめ
駅近・1階・駐車場あり――三拍子揃ったこの物件
ぜひご検討ください!

最寄り駅の1日平均乗車人員
15,077人 (北四番丁駅、2022年度)
近隣のビル・公共施設
・仙台市二日町第五仮庁舎(徒歩約5分圏内)
・仙台市シルバーセンター(徒歩約5分圏内)
官公庁やオフィスビルに勤務する公務員・ビジネスマン層の平日の利用が多く見込めます。また、「勾当台公園」駅方面へ進むと、宮城県庁や仙台市役所、東京エレクトロンホール宮城(宮城県民会館)などがあり、広範囲な集客も可能です。
エリアの今後の予測
【ポジティブ要素】
・オフィス街であるため、平日の固定客の確保が期待できる。
・勾当台公園や定禅寺通などの観光スポットにも近く、イベント時の集客も見込める。
【ネガティブ要素】
・周辺はオフィスビルやマンションが多く、特に夜間や休日は人通りが少なくなる可能性がある。
・近隣に同業種の飲食店やサービス店舗が多く存在する場合、価格競争やサービスの差別化が必要となる。
所在 |
仙台市青葉区二日町 |
|---|---|
沿線 最寄駅 |
地下鉄南北線「北四番丁駅」徒歩5分 |
賃料 (円) |
243,990円 |
管理費(共益費) (円) |
67,775円 |
敷金(保証金)/礼金 (ヶ月) |
8ヶ月 0ヶ月 |
坪単価 (円/坪) |
9,000円 |
面積 |
89.639㎡ 27.11坪 |
※消費税別途
【当物件の各設備など】
- EV

- 機械警備

- 新耐震

- OAフロア

- 管理人

- 来店型事務所

- 駐輪場

- 24時間利用

- バリアフリー

図面と現況が異なる場合は現況を優先致します
| 契約時に必要な金額 | 毎月必要な金額 | ||||
|---|---|---|---|---|---|
| 前家賃(賃料+管理費等) | 311,765 | 賃料 | 243,990 | ||
| + | 敷金 | 1,951,920 | + | 共益費 | 67,775 |
| + | 礼金 | 0 | |||
| + | 仲介手数料 | 243,990 | |||
| + | 賃貸保証料 | 311,765 | |||
| 合計(税別) | 2,819,440 | 合計(税別) | 311,765 | ||
※合計額は概算です。実際の契約時とは異なる場合があります
※契約時には火災保険料が必要になります
※前家賃は当月分(日割り計算)+翌月分となる場合があります
※物件により鍵交換代など、その他費用がかかる場合があります
| 建物構造 | 鉄骨鉄筋コンクリート造 | 階数/所在階 | 地下1階地上13階建/1階部分 | |
|---|---|---|---|---|
| 築年 | - | 参考使用人数 | 約9人 | |
| 現況 | 入居中 | 入居予定年月 | 2026年6月予定 | |
| 天井高 | 約2,600mm | 床荷重 | - | |
| 空調 | 個別 | 電気量 | - | |
| 駐車場 | 要確認 | |||
| 契約期間 | 普通2年 | 取引態様 | 仲介 | |
| 本体設備 | エレベーター | |||
| 各戸設備 | 個別空調・タイルカーペット(OAフロア) | |||
| 備考 | ※借家人賠償保険料別途 |
|||
※使用人数は3坪/1名として計算しています


