住所:仙台市青葉区中央三丁目 交通:仙台市地下鉄南北線「仙台駅」徒歩2分 賃貸オフィス 貸事務所
T4985-1 【新仙台駅前ビル】仙台・中央3丁目の軽快オフィス

仙台駅から徒歩2分
中央3丁目のど真ん中に
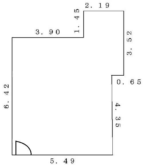
39.55㎡(11.96坪)の
ちょうどいい拠点が待っています
朝の移動ロスが減るだけで
仕事のスピードが一段上がる
打合せも来客も
「駅前だから」
で説明が終わる
そんな強さがあります

レイアウトで“自分仕様”に寄せやすく
少人数オフィスはもちろん
予約制のサロンや
教室にもフィット
共用部に男女別トイレと
湯沸室があるので
室内は仕事やサービスに集中できます

充実の設備でビジネスをサポート
エレベーターが2基完備されているので、
来訪者が多い場合でもスムーズな移動が可能です。

エレベーター2基以上で
上下移動がスムーズ
さらに内廊下仕様で
来客導線もスマート
24時間利用可&土日祝OKのため
繁忙期だけ夜型に切り替える…
なんて使い方も
ここなら、働き方の自由度が“実務”として手に入ります。
賃料12万円(税別)で叶える理想の拠点
仙台中心部でこれほどコストパフォーマンスの良い物件は
なかなかありません。
お問い合わせお待ちしております!




所在 |
仙台市青葉区中央三丁目 |
|---|---|
沿線 最寄駅 |
仙台市地下鉄南北線「仙台駅」徒歩2分 |
賃料 (円) |
120,000円 |
管理費(共益費) (円) |
無 |
敷金(保証金)/礼金 (ヶ月) |
3ヶ月/1ヶ月 |
坪単価 (円/坪) |
10,033/坪 |
面積 |
39.55㎡ 11.96坪 |
※消費税別途
【当物件の各設備など】
- EV

- 機械警備

- 新耐震

- OAフロア

- 管理人

- 来店型事務所

- 駐輪場

- 24時間利用

- バリアフリー

図面と現況が異なる場合は現況を優先致します
| 契約時に必要な金額 | 毎月必要な金額 | ||||
|---|---|---|---|---|---|
| 前家賃(賃料+管理費等) | 120,000 | 賃料 | 120,000 | ||
| + | 保証金 | 360,000 | + | 管理費 | 0 |
| + | 礼金 | 120,000 | |||
| + | 仲介手数料 | 120,000 | |||
| + | 賃貸保証料 | 120,000 | |||
| 合計(税別) | 840,000 | 合計(税別) | 120,000 | ||
※合計額は概算です。実際の契約時とは異なる場合があります
※契約時には火災保険料が必要になります
※前家賃は当月分(日割り計算)+翌月分となる場合があります
※物件により鍵交換代など、その他費用がかかる場合があります
| 建物構造 | 鉄骨鉄筋コンクリート造 | 階数/所在階 | 地上10階建/3階部分 | |
|---|---|---|---|---|
| 築年 | 1979年12月 | 参考使用人数 | 約3人 | |
| 現況 | 空 | 入居予定年月 | 相談 | |
| 天井高 | 床荷重 | |||
| 空調 | 電気量 | |||
| 駐車場 | 32,000円/月 空き台数要確認 | |||
| 契約期間 | 普通2年 | 取引態様 | 媒介 | |
| 本体設備 | ,ビルトインエアコン,エレベーター2基以上,内廊下 | |||
| 各戸設備 | 個別空調 | |||
| 備考 | ※区画内に給排水無(トイレ・給湯室共用) |
|||
※使用人数は3坪/1名として計算しています


